Wygodny dom dla firmy lub rodziny

Dom (Wolnostojący) na wynajem
6 996,00 PLN , Pow. 156 m2
Drukuj ofertę
Drukuj ofertę
Typ nieruchomości:
Dom
Powierzchnia:
156 m2
Typ transakcji:
wynajem
Liczba pokoi:
5
Lokalizacja:
Warszawa Bemowo Jelonki
Liczba pięter:
2
Numer oferty:
TB#629097
Powierzchnia działki:
450 m2
Cena za m2:
44,85 PLN
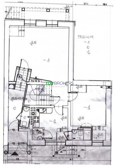
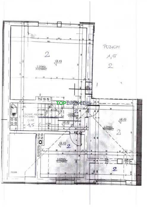
Do wynajęcia 2 kondygnacje 156m2, w wolnostojącym budynku 3-kondygnacyjnym, działka 450 m2, Bemowo, Jelonki Północne.

Idealna propozycja na biuro, pracownię lub siedzibę firmy, również na cele mieszkalne.

Cena: 6 996 zł netto + prąd, woda, gaz wg zużycia. Wymagana kaucja 14 000 zł.

Wygodna lokalizacja, tylko 70m do przystanków autobusowych, 15 min pieszo do metra Bemowo (M2). Cicha, zielona okolica. W pobliżu liczne sklepy spożywcze i punkty usługowe, szkoły, przychodnie, centra handlowe, parki, usługi, ośrodki kultury, urzędy. Nieopodal Las Bemowo, rezerwat Łosiowe Błota, otulina Kampinoskiego Parku Narodowego.

Dom to:
= parter: oddzielne wejście
* 2 pokoje;
* pomieszczenie: zlew, można przystosować na kuchnię;
* toaleta: wc, umywalka;
* przedpokój: szafa w zabudowie;
* ogród;

= I piętro:
* 3 pokoje: 40m2, 22m2, 12 m2;
* łazienka: prysznic, wc, umywalka;
* balkon.

W cenie najmu 2 miejsca parkingowe na posesji.

Alarm, kamery, szybki internet, ogrzewanie gazowe, woda miejska, brama wjazdowa na podwórko o szerokości ok 4,5 m. 

Oferta biura nieruchomości, prowizja płatna dopiero po podpisaniu umowy najmu. Więcej propozycji na topbrokers(kropka)pl
Nieprawidłowy adres E-mail